主营:实验室相关设备、家具制造、销售;实验室工程安装、装饰、装修、技术咨询服务;五金(不含油漆)、建材(不
咨询电话:
13644415295
| 价格 | ¥ 1000.00 |
| 起订量 | ≥1平 |
好货推荐
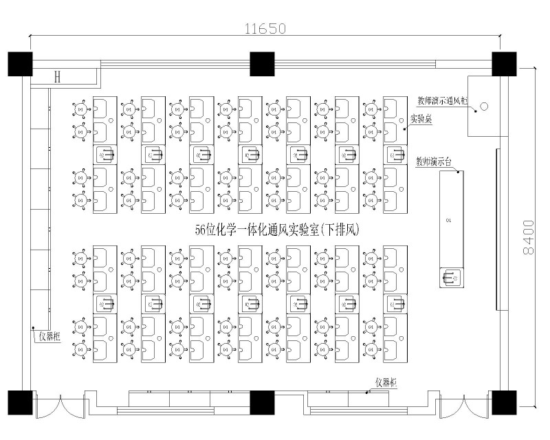
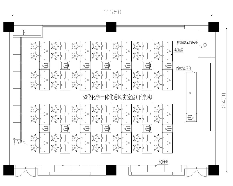
| 执行质量标 | 国标 | 规格 | 实验室整体规划设计施工 |
| 适用行业 | 中学实验室 | 加工定制 | 有 |
| 用途范围 | 实验室规划施工 | 报价方式 | 按实际订单报价为准 |
PRODUCT DETAILS
公司现自主研发的产品有:实验台、通风柜、药品柜、器皿柜、更衣柜、天平台、承重台、仪器台、试剂架等全系列的实验室产品。并可根据客户要求量身设计订做产品,产品广泛应用于科研、化工、食品加工、制药、检测检验,各大高校等企事业单位。



产品推荐